建日筑闻 2019-11-30 18:40:35
N3-3 转运站与N3-17 转运站 本组图片©陈鹤
联合泵站与原料主控室
星巴克 ©黄临海
2022首钢西十冬奥广场选址位于首钢旧厂址的西北角,地处阜石路以南、北辛安路以西。基地南侧的秀池和西侧的石景山山体,为项目带来了绝佳的山水自然环境。
项目总建筑规模约为86500平方米,主要功能为办公、会议、展示及其配套服务设施;项目共计十个建筑单体子项:N3-3转运站、N3-2转运站(含会议中心)、N1-2转运站、员工餐厅、主控室、联合泵站(含展示中心)、北七筒仓、干法除尘、停车楼;其中停车楼为新建,其他子项均为既有工业遗存改造或加建。
改造前的冬奥广场整体鸟瞰
冬奥广场总平图
N3-3 转运站与原料主控室
01.
工业遗存的挖掘
在谨慎保留原有建筑钢结构和混凝土结构的基础上,设计保留原有结构空间作为主要功能空间使用,交通核服务空间以钢框架外置。这样,建筑造型忠实呈现出了“保留”和“加建”的不同状态,表达了对既有工业建筑的尊重。
联合泵站空间通廊关系
立体步行系统
联合泵站
联合泵站
联合泵站
02.
自然生态的呵护
设计在原有工业建筑“封闭大墙”中植入开放式景观廊道及公共空间,建构园区内外景观的积极对话关系,基地内被谨慎保留的大树也形成了石景山景区向园区内部绿色渗透的最佳软连接介质。
N3-2 转运站与会议中心
N3-2 转运站与会议中心
N3-3 转运站
N3-3 转运站
N3-3 转运站
03.
人性园区的营造
在建筑尺度的整合策略上,设计对巨大工业尺度和人体尺度进行了柔和的缝合,中尺度新建建筑的介入弥合了原有大与小尺度的差异,形成了丰富的有机整体。
空间尺度植入和缝合关系
员工餐厅
员工餐厅
员工餐厅
04.
中国文化的演绎
穿行于建筑之间和屋面的室外楼梯及步廊系统为整个建筑群在保持工业遗存原真性的同时,叠加了园林化特质。整组建筑就是一个立体的工业园林,步移景异间,传承了中国园林的古典空间序列之美。
景观内院
景观内院
景观内院
景观内院
设计通过众多近人尺度的插建和加建细腻地缝合了原有基地内散落的工业构筑物。营造出了景色宜人、充满活力院落,以“院”的形式语言回归了东方最本真的关于“聚”生活态度。
员工餐厅
员工餐厅与N1-2 转运站
05.
联合泵站
联合泵站
联合泵站
联合泵站
联合泵站
联合泵站
联合泵站
06.
转运站与会议中心
各转运站保留原结构并外置交通空间的改造策略
N1-2 转运站
N1-2 转运站
N3-2 转运站与会议中心
N3-2 转运站
N3-2 转运站与会议中心
N3-2 转运站
N3-2 转运站
N3-3 转运站
N3-3 转运站
07.
原料主控室
原料主控室
原料主控室
原料主控室
原料主控室
原料主控室
项目图纸
项目区位
石景山炼厂建厂初期从美国进口的高炉
冬奥广场总平图
冬奥广场总平图
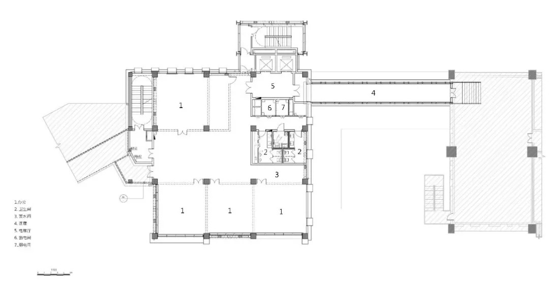
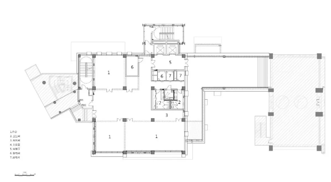
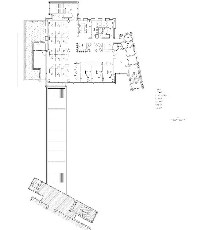
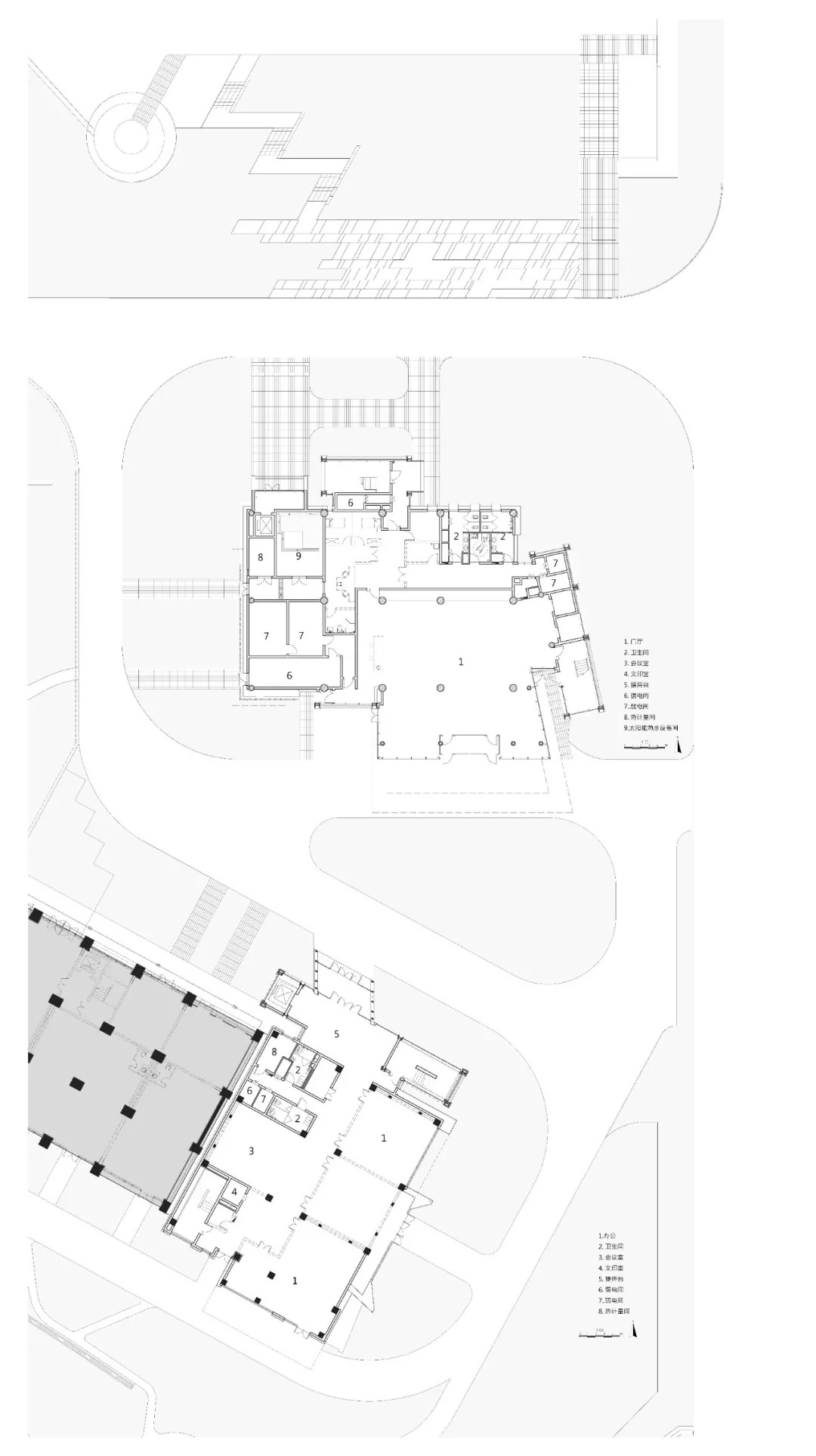
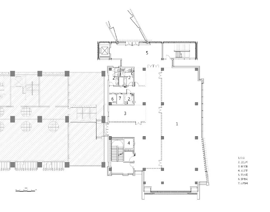
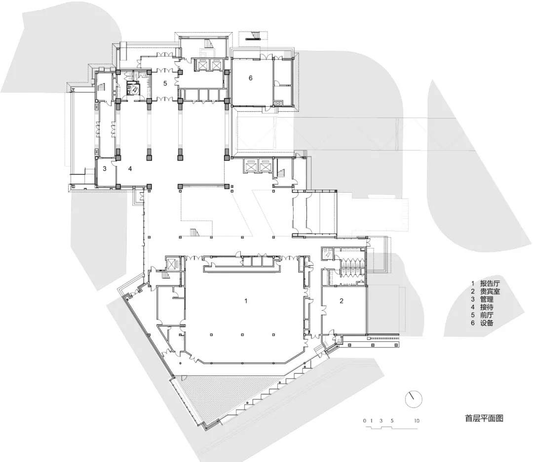
联合泵站首层平面图
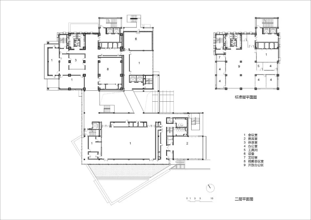
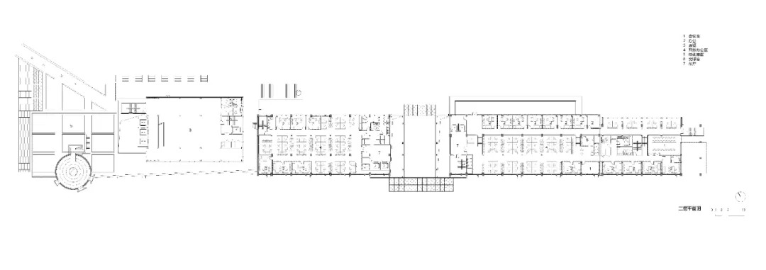
联合泵站二层平面图
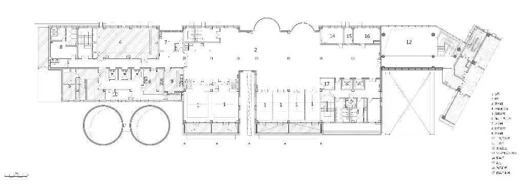
联合泵站标准层平面图
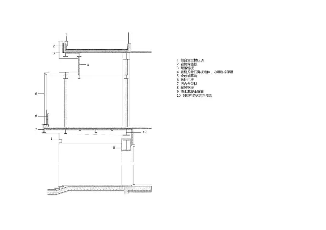
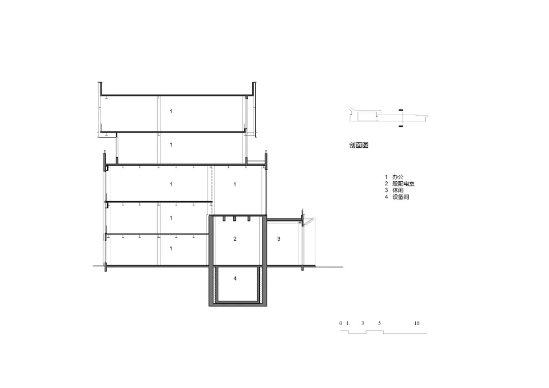
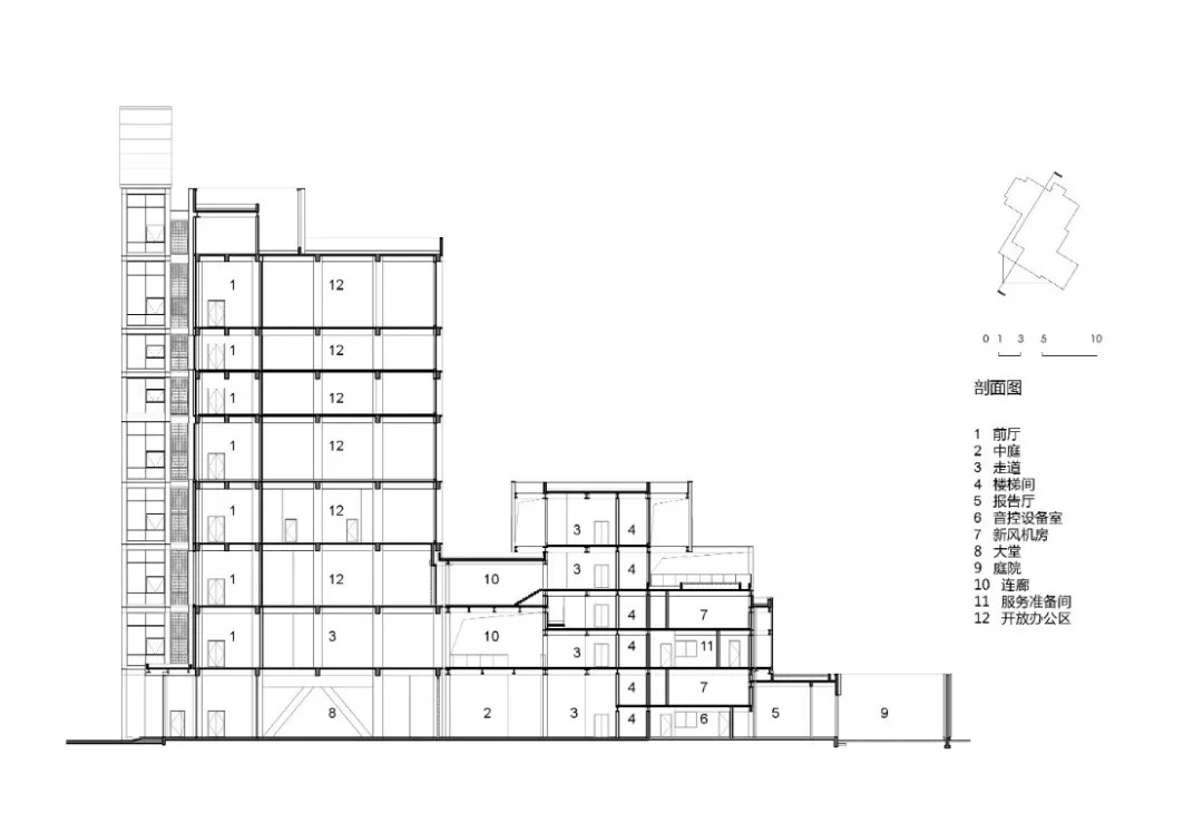
联合泵站剖面图
联合泵站剖面细节图
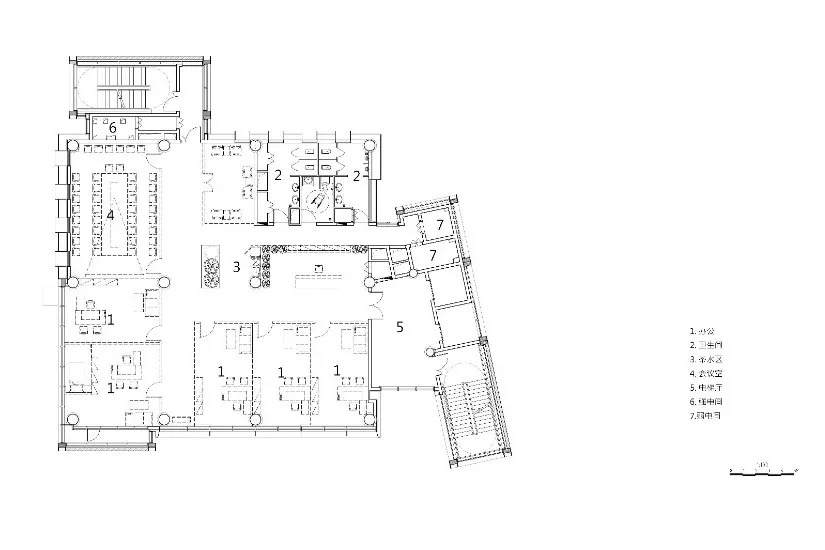
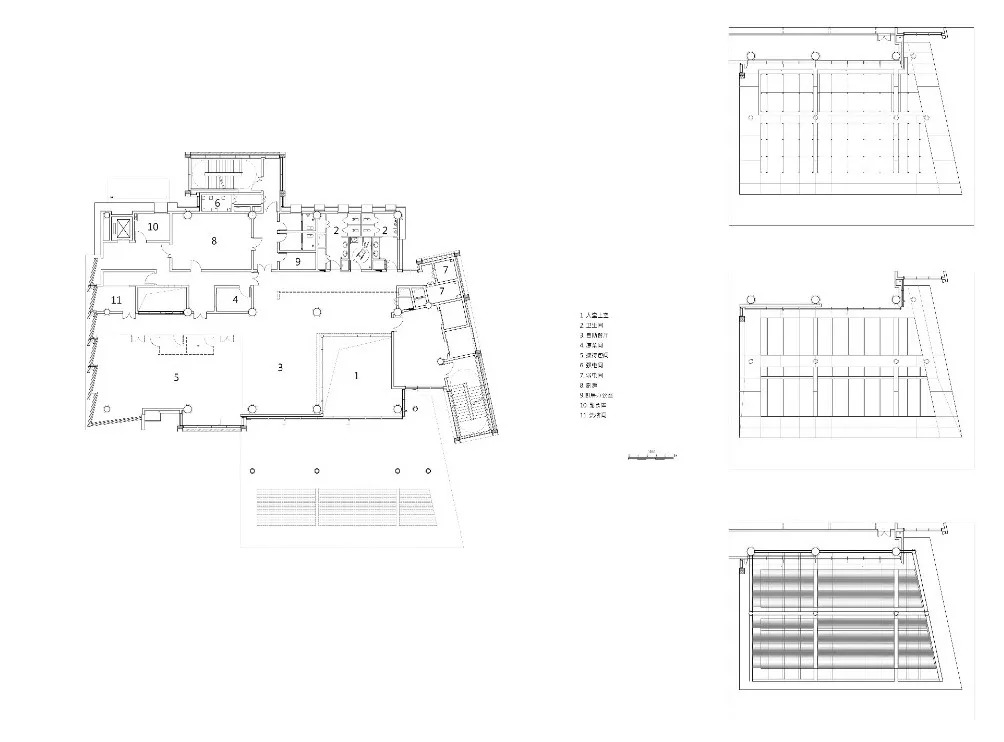
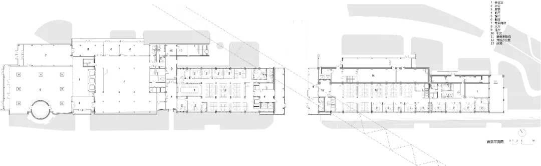
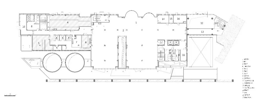
N3-2 转运站与会议中心首层平面图
N3-2 转运站与会议中心二层平面图
N3-2 转运站与会议中心剖面图
N3-2 转运站与会议中心剖面细节图
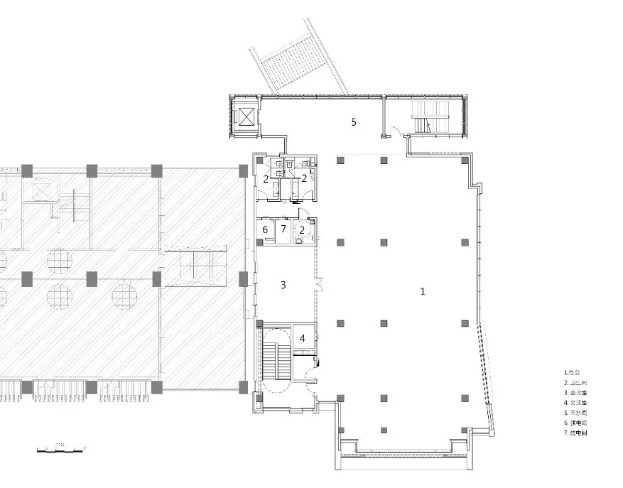
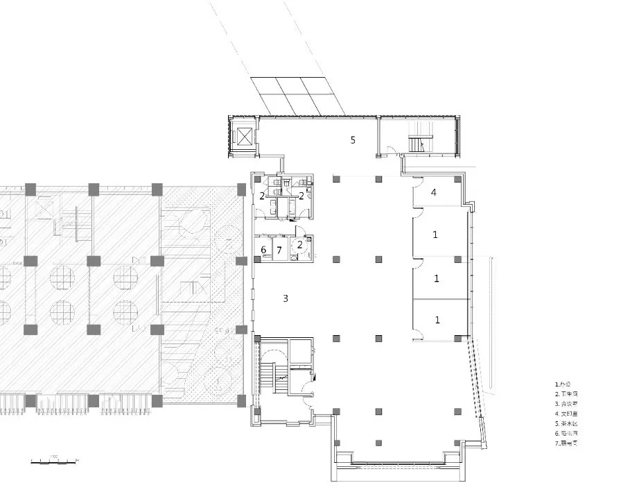
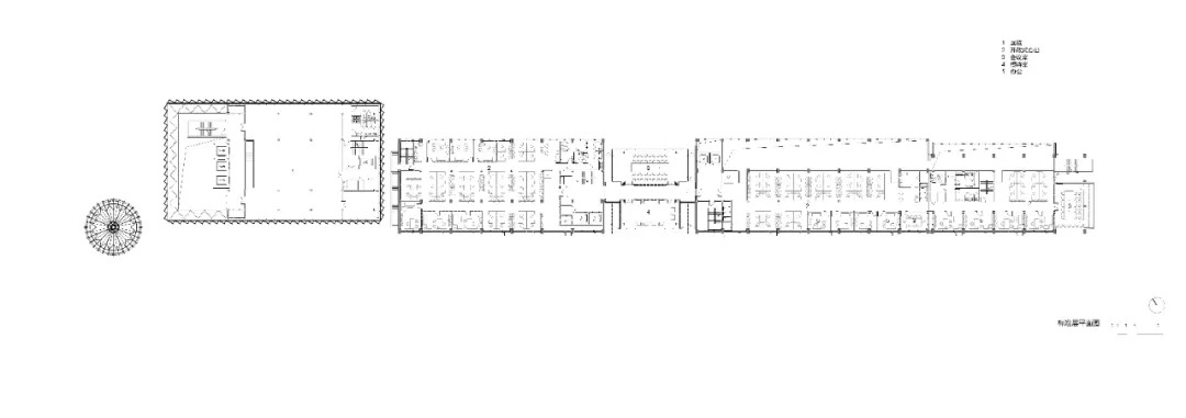
N3-3转运站与原料主控室首层平面图
N3-3转运站二层平面图
N3-3转运站三层平面图
N3-3转运站四层平面图
N3-3转运站标准层平面图
原料主控室二层平面图
原料主控室三层平面图
原料主控室四层平面图
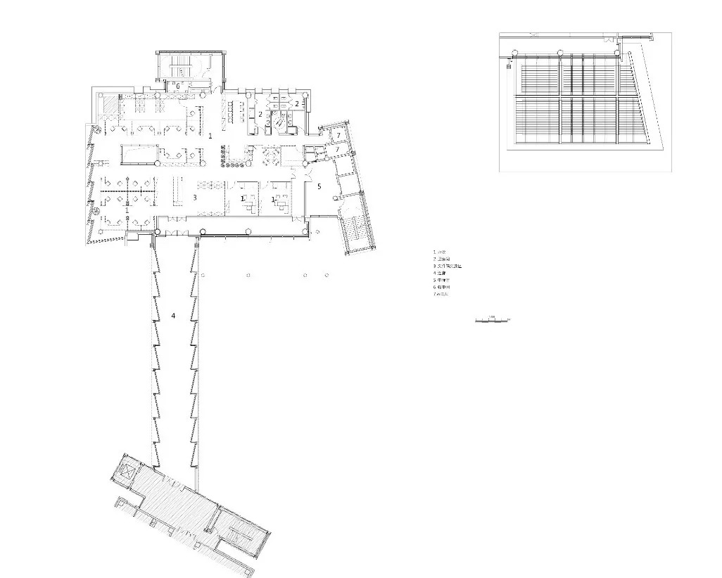
N1-2 转运站二层平面图
N1-2 转运站三层平面图
N1-2 转运站八、九层平面图
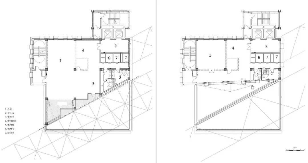
员工餐厅二层平面图
员工餐厅三层平面图
项目信息
建筑师:筑境设计
地址:首钢厂区北区,石景山,北京市,中国
建筑面积:87000.0 m2
项目年份:2017
摄影师:陈鹤
设计单位:筑境设计、首钢筑境、首钢国际工程公司
冬奥广场料仓办公楼:华清安地
南六筒仓办公楼:华清安地、英国思锐、比利时戈建筑设计
倒班宿舍及能源楼:李兴钢工作室设计
项目业主:北京首钢建设投资有限公司
责编:王铭俊
来源: 建日筑闻
我要问

下载APP
报料
关于
湘公网安备 43010502000374号