新湖南客户端 2019-09-20 22:09:39
金煌装饰|业主需求
业主是一位独立工作室摄影师,前期接触中了解到他是非常具有个性,对于空间和设计都有很多自己想法的人,希望客餐厅在有限的空间下能有些许展示他的摄影作品区域,及一些收藏的摄影器材都能在客餐厅的公共空间得以体现,热爱星级酒店式的卫生间。
设计理念
(原始结构图)
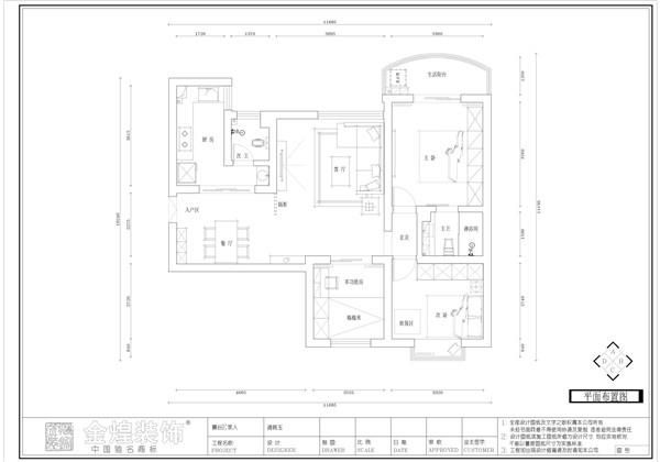
(平面布置图)
入户区,入户鞋柜是连接展示柜一体的,既解决家里的一部分收纳又让客户自己的一些收藏品得以展示。简约的铜制艺术灯,在整个空间起到画龙点睛的作用,让餐桌区也同时起到了玄关的作用,眼前一亮的感觉。
入户区
原始户型的厨房是非常小的,在平面上将次卫和厨房相连通,把厨房门改成推拉门,这样厨房和餐厅也是有互动的,餐厅本身是没有采光的,平面上餐厅厨房优化也在视觉上显得空间更加开阔,厨房橱柜整体用的黑白搭配,也迎合了整体风格黑白灰色系。
厨房
餐厅整面墙大面积运用深灰色,是为了让餐厅拉出色块,顶面暗藏灯带是为了让餐厅整面墙体,在软装挂画搭配上结合灯光去呈现会更出彩,餐厅齐着梁位做了一线酒柜,酒柜最上面一层是用玻璃配合等做的层板,空间极小也是为了不让酒柜显得呆板。
餐厅
客厅原结构是有缺陷的,客餐厅为整个通间,为了让客餐厅拉开空间感,所以在立面的处理将背景墙运用木饰面的元素做成隔断拉开客餐厅的距离,从入户观看是一个玄关,透过隔断对于沙发背景墙是若隐若现,次卧做成了多功能房,将多功能房也打通为推拉门,为了让客厅和房间空间和采光相通,靠近客厅还有一面墙做了一个展示柜,主要是为了视觉体验感和让家里空间显得多元化,无论从哪个角度去看都有亮点。
客厅
局部用木饰面的元素,包括公共区域的展示效果,都是为了赋予空间产生特别的展示气息。
因为空间有限,所以考虑把主卧收纳全部放在床头区域,床的靠背后面也是暗藏了氛围灯光,看上去后面是一个台面实际是可以打开收纳的空间,整体柜门都采用了高级灰,让整体房间在硬装上面就突出主色系搭配。
卧室
采用大理石定制洗漱台面,可以完美的收纳生活用品让卫生间即美观又合理利用空间。
洗手间
整个案例基于业主和设计师的反复沟通,将摄影师的思维和对艺术的诉求,通过设计师的专业作品呈现表达,达到理念诉求与设计出品高度统一,整套设计拉近各个空间的距离,让设计更贴近生活,空间是人与环境的整合,它涵概了一切外在的因素,并随着时间的不断运行不断变化,逐渐沉淀为对空间的经验与记忆,增添家的温度。
作品DNA
业主:何先生
房子面积:98平方
风格:现代风格
整体花费:24万
设计理念:
生活不设限,追求理想,享受过程
责编:张云龙
来源:新湖南客户端
我要问

下载APP
报料
关于
湘公网安备 43010502000374号