谷德设计网 2018-05-12 07:39:20
楚风汉韵
筑楚台
图书馆位于平坦宽阔的轴线中心,是整个校园的标志性建筑。建筑必须有足够大的体量创造具有控制力的广场界面。因此,设计将首层设计为基座—五级的跌台绿化,图书馆主体立于高台之上。
▼建筑外观
传统木构件的现代演绎
图书馆主入口通过对传统斗拱、排架的拆分和重组,以钢结构构架演绎传统木构的形态。东西立面覆以木色金属板,并将校园历史文化通过抽象篆书文字镂刻之上。将楚文化进行抽象和演绎,使历史底蕴在新建筑上得以延续和传承。
▼南立面
▼主入口
▼入口梁头细部
▼入口夜景
▼立面细部
▼东西立面覆以木色金属板
▼校园历史文化通过篆书文字镂刻在立面上
▼光影
书山绿谷
设计提取传统院落的精粹,以立体庭院的方式营造绿谷的意向。玻璃中庭悬挂绿色垂幔,形成对直射阳光的有效遮挡,也营造出绿意盎然的中庭效果。同时在首层基座跌台绿化设置雾喷,改善图书馆建筑的微气候。
▼室内设计以立体庭院的方式营造绿谷的意向
▼绿色垂幔形成对直射阳光的有效遮挡
▼细部,detail
▼阅览室
▼独立阅读空间
▼南侧水院
▼基座雾喷泉
▼屋顶庭院
▼夜景
▼北广场视角
▼体块生成示意
▼立面示意图
▼剖透视图
▼场地平面图
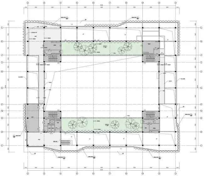
▼首层平面图
▼二层平面图
▼三层平面图
▼六层平面图
▼十一层平面图
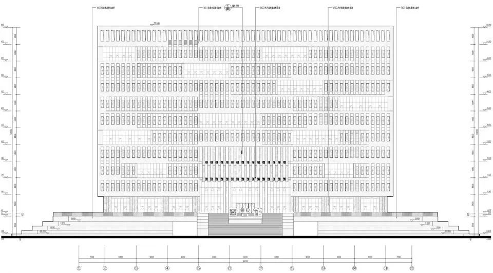
▼南立面图
▼北立面图
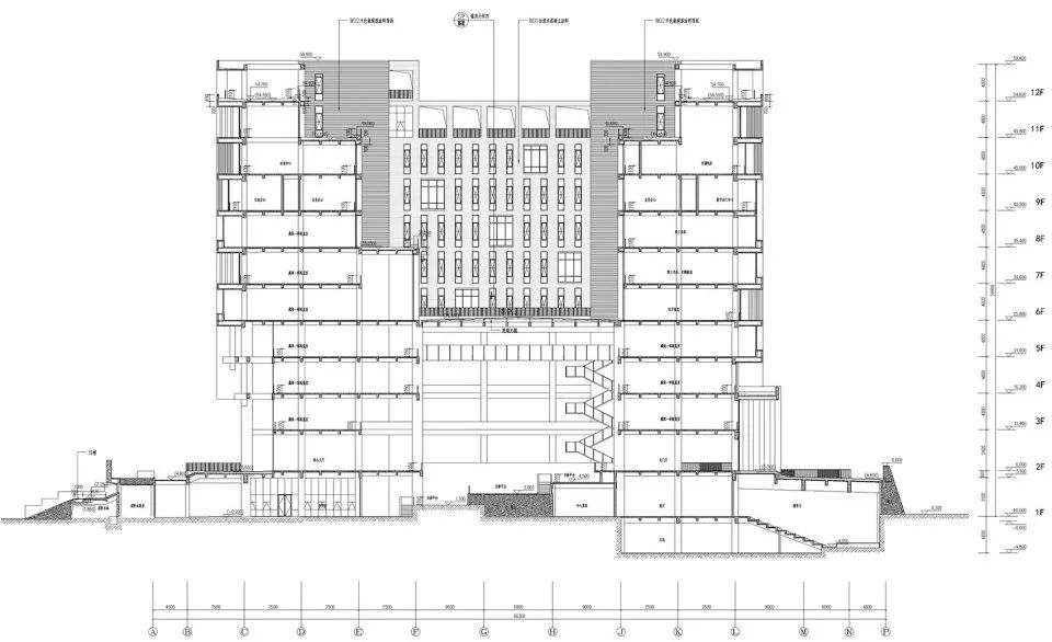
▼剖面图
武汉理工大学南湖校区图书馆
地点
湖北省武汉市洪山区珞狮路122号
业主
武汉理工大学
设计团队
华南理工大学建筑设计研究院 陶郅大师工作室
[建筑] 陶郅 郭钦恩 陈健生 陈子坚 陈向荣
[结构] 柳一心 舒宣武
[给排水] 王学峰
[电气] 黄晓峰 伍尚仁
[空调] 张毅 郭宇
[景观] 陈天宁 刘伟庆 邓寿朋
施工单位
中建三局集团有限公司
设计时间
2010.10 – 2015.01
建造时间
2012.01 – 2015.01
基地面积
18914 m2
建筑面积
47557.6 m2
层数
地上11层,地下1层
结构形式/Structure
钢筋混凝土框架结构
所获奖项
获2016年中国建筑学会建筑创作奖银奖(公共建筑类)
获2017年度教育部优秀勘察设计优秀建筑工程类一等奖
获2017年度全国优秀工程勘察设计奖一等奖
责编:王铭俊
来源:谷德设计网
我要问

下载APP
报料
关于
湘公网安备 43010502000374号