谷德设计网 2017-11-15 00:09:41
民生美术馆是基于一个80 年代的工业建筑改造而成。它以开放性、多元性、灵活性,对今天美术馆的封闭性、单一性及固定性提出了挑战,将会成为中国当代艺术的大公共平台。
▼美术馆外观
▼入口
快速的城市化,不仅为我们创造了物质文明的遗产,也为我们身后制造了大量的废弃物。我们喜新厌旧的心理,让众多老建筑遭到遗弃。798 地区的松下显像管厂已不再有过去近30 年的辉煌,虽然破旧,不美,但却透出工业建筑的粗犷,质朴与真实。这些特征恰和当代艺术的的态度不谋而合。民生现代美术馆的想法正是在这种基础上诞生,它尊重工业建筑朴素,真实的特质,顺势而为,无用之用,直指当代艺术空间的未来,挑战传统美术馆的冠冕堂皇。
▼一楼大厅
▼中庭
1. 空间多元,替代“白立方”单一空间模式
与传统艺术相比,当代艺术的一个显著特征是其表现形式的多元,为了成就这种特征,民生现代美术馆不仅塑造了传统美术馆中5米净高的经典空间,更有大小不一,尺寸各异,层高显著不同的空间:大盒子,中盒子,小盒子,经典空间,院落展览空间,黑盒子(多功能表演,会议,展览空间)去应对不同艺术形式的需求。它们有机地组织在一个充满张力的中心空间周围,结合美术馆前装置公园,屋顶展览平台,中心院落等开放式展览空间,构成一组尺度不同,形态各异的空间组群。
▼标准展厅
▼剧场阶梯
2. 公共性,灵活性,替代封闭性与固态静止的传统美术馆模式
未来美术馆不再是成功艺术家呈现辉煌的圣殿,而是激发公众和艺术作品及艺术家互动,交流的艺术场所。空间不再是为呈现作品而作,更是为艺术创作而生。艺术作品最有意义的瞬间,不是作品完成之时,而是公众参与与其互动的时刻。一些灵活可变,功能不明,有用无用的空间,却可激发艺术家和公众创作激情,为特定环境和场地而创作,让艺术品,公众和美术馆融为一体。
▼咖啡厅
▼庭院
▼开幕场景
▼模型
▼轴测图
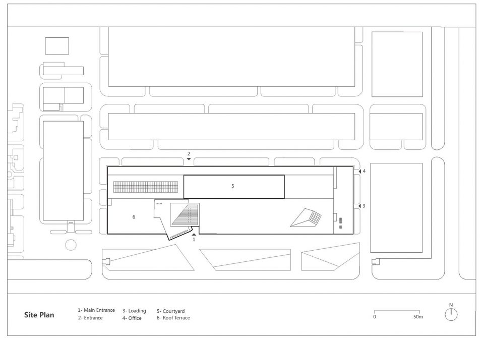
▼场地平面图
▼首层平面图
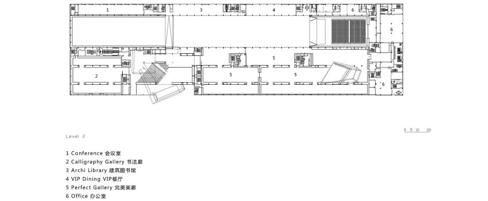
▼二层平面图
▼立面图
▼剖面图
建筑设计:朱锫建筑设计事务所
主持建筑师:朱錇
责编:王铭俊
来源:谷德设计网
我要问

下载APP
报料
关于
湘公网安备 43010502000374号