湖南设计 2018-10-10 00:05:06
导语
韶山干部学院建设项目于2017年10月,由湖南省建筑设计院有限公司(HD)与美国WATG组成联合体投标并一举中标。
项目意在打造一个对外开展党性教育,各地行政、事业、企业来此进行党员教育、革命传统教育的红色教育基地。
项目建成后,其独特的地理位置和人文景观,村落式的规划布局以及具有地方乡土风貌的建筑风格,有望区别于以往党校“轴线-行列式”的建筑特征,而成为湖南省乃至全国的一张闪亮的“红色”名片。
项目概况
韶山干部学院建设项目位于韶山市韶山乡韶润村,天鹅山南麓,红旗路以北,基地一面临城市道路,其它三面临山和自然村落,整体依山傍水,交通和景观条件优越。
项目用地建筑控制线面积148643.58㎡,总建筑面积约为7.7万㎡,其中地上计容总建筑面积约为6.2万㎡,地下建筑面积约为1.5万㎡。
设计理念
“村落式布局”是韶山干部学院的设计概念。
设计尊重场地的自然坡度坡向,保持原有乡土景观,尽量减少移山填土。
村落式总体规划是在自然农田景观之中突显出尺度适宜的建筑群落,力求打造舒适的教学场所,同时又兼具生活、休闲等功能。
绿色设计
1)尊重原始场地
项目用地位于天鹅山南麓山谷区域,用地内中、北部高,南侧底,高差达到20m左右,南面以及东南面较平缓,高差约为5m左右。
设计时,我们利用地形内的高差条件,依山就势考虑整体建筑群落的布局,最终形成类似传统村落式布局的形式。
▲总图设计通过架空和双首层解决场地高差
为了减少土方填挖量,应山就势,将场地内分为若干个台地,通过放坡和少量挡土墙以及道路来分隔各个不同标高的台地,从而减少土方工作,并比较自然的与道路进行人行和车行的衔接。
▲利用缓坡化解场地高差
2)原有景观融合与延续
场地内原有一些水体景观、坡地景观及绿色植物,在减少土方工程后,对原有的水体景观及植物尽可能保留并加以利用,保留了场地的景观记忆。
▲场地现状分析
▲场地布局设计
▲保留原有水景并加以利用
3)材料共融和创新
我们重新利用当地材料及做法,如陶土板、木材、拉毛墙面做法等。同时,局部融合现代材料,如金属屋面系统、玻璃幕墙系统等。传统材料与现代材料构成富有张力的对比,与优美的自然环境一起,为项目提供了新的人文表情和地域文化气息。
▲丰富的立面材料
▲丰富的立面效果
BIM技术运用
本项目从方案阶段开始,我们就尝试在Revit软件中完成所有建筑模型搭建、图纸出图及信息统计。
因此充分保证前期方案设计与后期施工图深化设计对接顺畅,信息传递准确完整。
目前美国大部分设计公司都已经在方案深化阶段到施工图阶段采用Revit进行深化设计,国内北上广等一些著名设计公司也在推行。
因此此项目也是HD在BIM项目正向设计与信息化设计的试点,在技术手段更新与信息化设计上迎头赶上的一个项目实例。
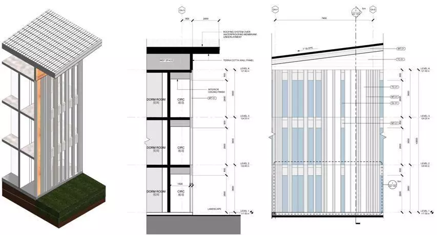
▲BIM模型立面节点
▲BIM模型局部节点
在项目信息整理方面,BIM技术展现了其优越性。集中表现在能更加准确地统计出各类信息,如门窗、幕墙、电梯及图纸目录等,并能根据模型内容的调整做出相应的反馈。
▲图纸目录统计
▲幕墙明细统计
▲门明细表
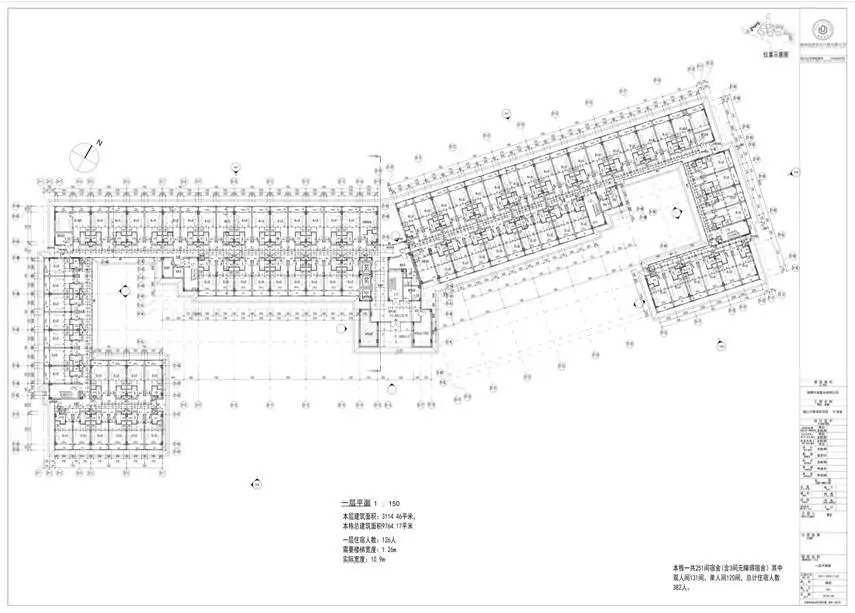
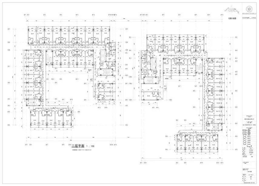
本项目现已在Revit软件中,完成部分建筑的初步设计,并作为二院全专业BIM运用的试点项目推进。
以下为部分设计图纸展示。
供稿 | 姜思华 龙毅湘
部门 | HD建筑二院
责编:王铭俊
来源:湖南设计
我要问

下载APP
报料
关于
湘公网安备 43010502000374号